Beschreibung
Gewerbeflächen als Büro- oder Praxisräume geeignet, im 1. OG dieses Gewerbeparkes in 59821 Arnsberg zu vermieten.
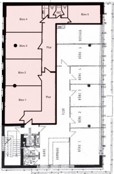
Bisher waren die Flächen an einen Bildungsträger vermietet, es handelt sich um Büroflächen auf insgesamt rund 608,00 m² Fläche. Hier finden Sie einen Lastenaufzug und eine Rampenanlieferung.
Falls Ihnen die Flächen zu klein sind, oder Sie zusätzliche Hallenflächen benötigen stehen weitere Räume zur Anmietung bereit, fragen Sie an.
Der Mietpreis beträgt für die gesamte Fläche von 608,00 m² (x 2,45€/m²) = 1.490,00 € monatlich zuzüglich Betriebskosten und MwSt.
Energieausweis
Art: Verbrauchsausweis Gewerbe
Gültig bis: 22.08.2029
Baujahr lt. Energieausweis: 2019
Wesentlicher Energieträger: Gas
Endenergieverbrauch (Wärme): 117.00 kWh/(m²*a)
Endenergieverbrauch (Strom): 11.00 kWh/(m²*a)
Ausstattung
- Bei der Gebäudeausstattung können Ihre Wünsche einfließen.
- Nutzfläche: ca. 608,00 m²
- Ausreichend Stellplätze sind vorhanden.
- Lastenaufzug
- Rampenanlieferung
Lage
Die Immobilie befindet sich in einem Gewerbepark in Alt-Arnsberg.
Arnsberg bietet eine gute Anbindung an den öffentlichen Verkehr durch vieler Bushaltestellen. Schulen, Kindergärten, Spielplätze sind ebenso in unmittelbarer Nähe.
Eine gute Einkaufsmöglichkeit bietet das Brückencenter, in dem vieler Geschäfte, sowie ein Parkhaus Platz finden.
Die Schlossruine, das Klassizismus-Viertel mit Neumarkt, sowie das Sauerland-Museum bieten immer wieder ein Ausflug in die Kultur.
Für Wanderer und Radfahrer sind die Seen Sorpe-, Möhne-, und Hennesee schöne Ausflugsziele, die sich in unmittelbarer Nähe befinden oder der Ruhrtalradweg.
Gute Gastronomie, viele Biergärten und ein gutes Sport- und Freizeitangebot bietet die Stadt Arnsberg.
Die Autobahnanbindung ist innerhalb weniger Minuten erreichbar.
Sonstiges
Alle Informationen sind vom Eigentümer zur Verfügung gestellt.
Haben wir Ihr Interesse geweckt? Wir freuen uns über Ihre SCHRIFTLICHE Anfrage.
Bitte beachten Sie, dass wir bei Neukunden nur Kontaktanfragen mit vollständigen Angaben von Namen, Anschrift und Telefonnummer bearbeiten.
Wir melden uns garantiert kurzfristig zurück und vereinbaren einen persönlichen Besichtigungstermin.
Gleichzeitig möchten wir höflich darum bitten, von telefonischen Anfragen abzusehen.
Die genaue Adresse zu diesem Objekt erhalten Sie auf Anfrage.
Besuchen Sie unsere Homepage, wir haben laufend neue Immobilien für Sie im Angebot.
www.fischer-immobilien.nrw
Energieausweis
| Baujahr |
1959 |
| Zustand |
Gepflegt |
| Energieausweis |
Verbrauchsausweis Gewerbe |
| Energieausweis gültig bis |
22.08.2029 |
| Baujahr lt. Energieausweis |
2019 |
| wesentlicher Energieträger |
Gas |
| Endenergieverbrauch (Wärme) |
117 kWh/(m²a) |
| Endenergieverbrauch (Strom) |
11 kWh/(m²a) |